YM house-6 | キッチンの最終確認@クチーナ
7月下旬より工事着手したYM houseですが、そろそろキッチンの発注もかけないといけない時期になりましたので、お施主様と一緒に代官山にあるクチーナ ショールームへ、発注前の仕様確認に行ってきました。
計画序盤の4月上旬にショールームへ伺ってから、しばらく時間があいていましたので、まずはキッチンのデザインイメージから確認です。

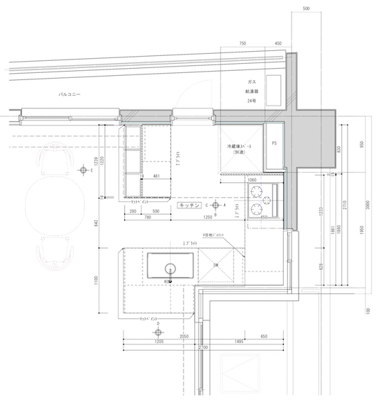
キッチンは、窓の位置を活かしたL型プランにしています。使い勝手からシンクやガスコンロの位置は既存と同じような位置になっています。

カウンターはすべてフラットにしています。その方が下ごしらえの準備をする時に材料やお料理の本、レシピを見る用にタブレットなどを置けますし、何人かでお料理するときに作業ができるスペースになったりするので、フレキシブルな使い方ができます。

リビング側から見てもすっきり見えるように、カウンター天板の厚さはクォーツストーンの材厚12mmが通るようなディテールにして、扉は展示の写真のようなプッシュラッチにして把手をつけないデザインにしています。

カウンター材はアイカ工業のクォーツストーン、フィオレストーンのホワイトクレイです。扉は“シェルホワイト”というクチーナ オリジナル色で少しグレーがかかったホワイトの鏡面塗装仕上げになりました。

キッチン収納や設置する設備機器などの仕様も確認していきます。コンロ下部には、1枚の引出し扉で操作して、中に小引き出しがあって引き出しとしては2段になるタイプを採用しています。鍋やフライパン、ボウルなど調理器具の収納は、引き出し収納にすると屈まなくても上から覗いて器具を出し入れできるので便利です。

L型キッチンは、コーナー部分の収納がデッドスペースになりやすいのですが、その部分はコーナー用収納を採用し、収納量をできるだけとれるようにしています。

クチーナ で担当してもらっている平井さんより、展示されているミーレの食洗機を使用して、使い方などを説明していただきました。

採用するレンジフードについて実物を見ながら仕様の確認をするのと合わせ、お手入れについても説明していただきました。
お施主様の最終確認で追加変更になった部分を製作図に反映して、あとは解体工事後の現場状況と計画内容をすり合わせしましたら、いよいよキッチンも発注になります。